photo: marko bradich
photo: marko bradich
X
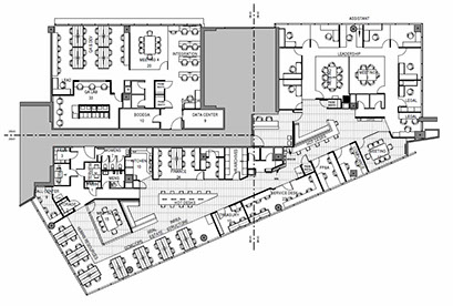
Occupying 550 m2 of commercial office space, the project requirements were to create spaces for improptu interaction while allowing various teams to maintain privacy and focus. Sher + Castillo executed both the design and construction of all aspects of this project and delivered a customized space for each workgroup while at the same time accommodating the changing needs of the client through the use of flexible work spaces.
Sher + Castillo Architects brand and logo are property of Sher + Castillo Architects. The use and/or reproduction without consent is a direct violation of Copyright © 2023, Guatemala 2023.